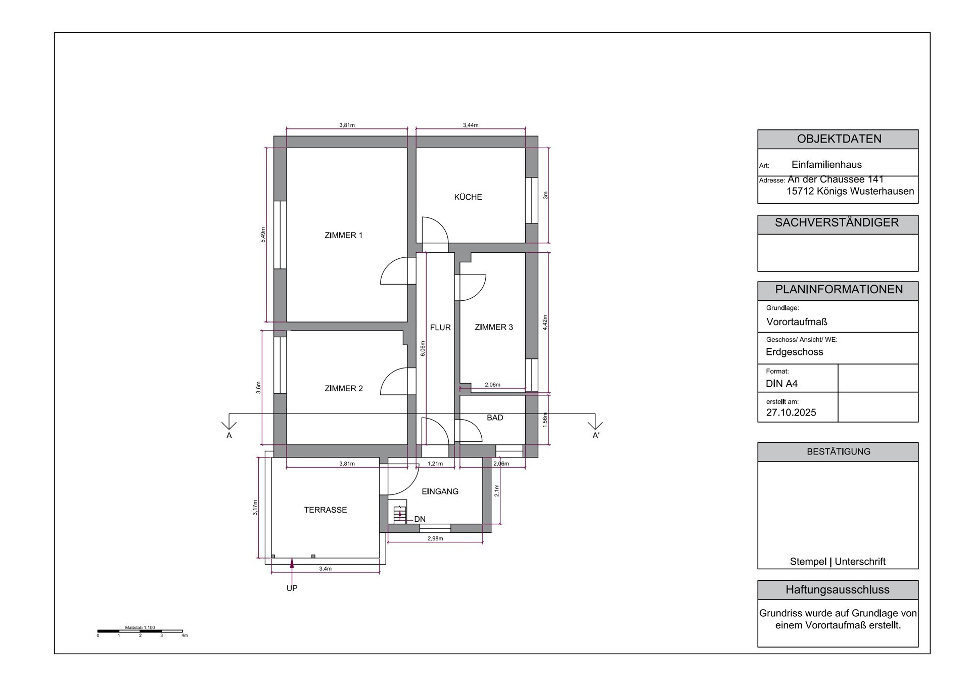
Entdecken Sie eine einmalige Gelegenheit: Ein charmantes Bungalow mit Potenzial in Senzig. Dieses Haus aus dem Jahr 1969 bietet Ihnen auf einer Ebene eine Wohnfläche von ca. 75 m², verteilt auf drei Zimmer. Das Objekt ist teilweise unterkellert und punktet mit einem großzügigen Grundstück von ca. 905 m², ideal für Gartenliebhaber und all jene, die sich den Traum von einem eigenen Rückzugsort im Grünen erfüllen wollen.
Der Bungalow ist renovierungsbedürftig und bietet Ihnen somit die Freiheit, Ihr neues Zuhause individuell nach Ihren Vorstellungen zu gestalten. Das Raumangebot umfasst ein Schlafzimmer, ein Badezimmer und einen hellen Wohnbereich. Die offene Gestaltungsmöglichkeiten schaffen ein angenehmes Wohnambiente.
Das Objekt besticht durch seine ruhige Lage in Senzig, einer charmanten Ortschaft, die naturnahe Erholung verspricht und dennoch eine gute Anbindung an umliegende Städte bietet. Hier können Sie sofort durchstarten: Die Immobilie ist ab sofort verfügbar und wartet nur darauf, von Ihnen in ein Zuhause mit persönlicher Note verwandelt zu werden.
Nutzen Sie diese Gelegenheit, um in ein zukunftsträchtiges Projekt zu investieren – kontaktieren Sie uns für eine Besichtigung und lassen Sie sich von den Möglichkeiten inspirieren, die dieses Schmuckstück zu bieten hat.
Technische Angaben
- ImmoNr
- 2025-10-59
Kategorie
- Objektart
- Haus
- Objekttyp
- Bungalow
- Nutzungsart
- Wohnen
- Vermarktungsart
- Kauf
Geografische Angaben
- Ort
- Senzig
- Land
- Deutschland
Flächen
- Wohnfläche
- ca. 75 m²
- Nutzfläche
- ca. 32 m²
- Grundstücksgröße
- ca. 905 m²
- Anzahl Zimmer
- 3
- Anzahl Schlafzimmer
- 1
- Anzahl Badezimmer
- 1
Ausstattung
- Befeuerung
- Gas
- Etagenzahl
- 1
- Stellplätze
- 2 Freiplätze, 1 Garage
Preise
- Kaufpreis
- 259.900,00 €
- Außen-Provision
- 3,57 % des Kaufpreises inklusive Mehrwertsteuer
Beschreibung
Ausstattung
Das Haus wird durch eine moderne Gastherme beheizt, die erst vor Kurzem erneuert wurde und für eine zuverlässige, effiziente Wärmeversorgung sorgt. Ergänzt wird das Heizkonzept durch einen großzügigen Ofen, der sowohl das Wohnzimmer als auch das Schlafzimmer beheizt und so eine besonders behagliche Atmosphäre schafft. Da der Ofen komfortabel vom Flur aus bedient wird, sind diese drei Räume bei Betrieb schnell und gleichmäßig angenehm warm.
Lage
Der angebotene Bungalow befindet sich in der idyllischen Ortschaft Senzig, eingebettet in die malerische Landschaft Brandenburgs. Die attraktive Lage in diesem charmanten Vorort von Königs Wusterhausen bietet eine harmonische Kombination aus naturnahem Wohnen und städtischer Anbindung.
Senzig zeichnet sich durch seine ruhige und familienfreundliche Umgebung aus, die insbesondere Naturliebhaber und Ruhesuchende zu schätzen wissen. Zahlreiche Seen und Wälder in der unmittelbaren Umgebung laden zu ausgedehnten Spaziergängen, Radtouren und anderen Freizeitaktivitäten im Freien ein.
Die Nähe zur Metropole Berlin, die über die gut ausgebaute Verkehrsverbindung in kurzer Zeit erreichbar ist, macht Senzig zum idealen Wohnort für Pendler. Im Ortskern von Senzig befinden sich verschiedene Einkaufsmöglichkeiten für den täglichen Bedarf sowie eine Auswahl an Schulen und Kindergärten.
Dank der hervorragenden Anbindung an das öffentliche Verkehrsnetz erreichen Sie schnell umliegende Städte und Gemeinden. Die nächstgelegene größere Stadt, Königs Wusterhausen, bietet weitere Möglichkeiten für Shopping, Kultur und Gastronomie.
Insgesamt bietet die Lage des Bungalows eine perfekte Kombination aus Naturverbundenheit und städtischem Komfort, die sowohl für Familien als auch für Paare oder Singles attraktiv ist.
Senzig zeichnet sich durch seine ruhige und familienfreundliche Umgebung aus, die insbesondere Naturliebhaber und Ruhesuchende zu schätzen wissen. Zahlreiche Seen und Wälder in der unmittelbaren Umgebung laden zu ausgedehnten Spaziergängen, Radtouren und anderen Freizeitaktivitäten im Freien ein.
Die Nähe zur Metropole Berlin, die über die gut ausgebaute Verkehrsverbindung in kurzer Zeit erreichbar ist, macht Senzig zum idealen Wohnort für Pendler. Im Ortskern von Senzig befinden sich verschiedene Einkaufsmöglichkeiten für den täglichen Bedarf sowie eine Auswahl an Schulen und Kindergärten.
Dank der hervorragenden Anbindung an das öffentliche Verkehrsnetz erreichen Sie schnell umliegende Städte und Gemeinden. Die nächstgelegene größere Stadt, Königs Wusterhausen, bietet weitere Möglichkeiten für Shopping, Kultur und Gastronomie.
Insgesamt bietet die Lage des Bungalows eine perfekte Kombination aus Naturverbundenheit und städtischem Komfort, die sowohl für Familien als auch für Paare oder Singles attraktiv ist.
Energieausweis
A
B
C
D
E
F
G
- Baujahr lt. Energieausweis
- 1969
- Endenergiebedarf
- 206,8 kWh/(m²a)
- Energieausweis
- Bedarfsausweis
- Energieausweis gültig bis
- 20.10.2035
- Energieeffizienzklasse
- G
- wesentlicher Energieträger
- Gas











